+7 (495) 646-61-04
Заказать обратный звонок
+7 (800) 333-10-52
Telegram
MAX
Время работы
Время работы
Новосибирск
Москва
Санкт-Петербург
Казань
Краснодар
Екатеринбург
Тюмень
Челябинск
Другие регионы
0
0
Корзина пуста
Поиск
Акции и скидки
Адрес бутика
Доставка
Подключение
Сервис-центры
Каталог товаров
Все бренды
Asko
Miele
V-ZUG
Kuppersbusch
De Dietrich
Liebherr
Другие бренды
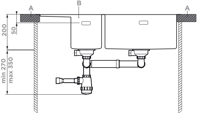
Мойка Omoikiri AKISAME 78-2 GM R крыло слева
Схема с размерами версия 2
Omoikiri AKISAME 78-2 GM-R - схема с размерами версия 2 к мойке на разных языках на Hausdorf
Сохранить файл: Схема с размерами к Omoikiri AKISAME 78-2 GM-R.JPG, 32.42 Кб
В наличии
83 088
руб.
74 788
руб.
Цена на 22.04.2026
Быстрая доставка
Доставка в оговоренные сроки после предварительного согласования с оператором.
Подробнее
Профессиональная установка
Подключение на готовые коммуникации мастерами авторизованного сервисного центра.
Подробнее
Вернуться на страницу товара
Бутик Hausdorf
+7 (800) 333-10-52
shop@hausdorf.ru
Mo-Su 13:00-01:00
Новосибирск
На нашем сайте мы используем Cookies
Узнать подробнее
Понятно
Этот сайт использует файлы cookie
Используя сайт, вы предоставляете
Согласие на обработку ваших персональных данных
с помощью сервисов веб-аналитики cookie. Вы можете ознакомиться с
Политикой обработки персональных данных
Понятно